Description
SUBSTANTIAL DETACHED PERIOD HOUSE WITH LARGE MATURE GARDENS & TENNIS COURT Located on the eastern side of the city in a semi rural location yet within walking distance of Waitrose, The Cornish Food Hall, Park and Ride, Penair and Truro schools. New natural slate roof replaced in 2025. Light, well proportioned rooms enjoying views over the garden and countryside beyond. Four bedrooms, master with en suite, kitchen/breakfast room, dining room, sitting room, conservatory, study/fifth bedroom with en suite shower room, bathroom and cloakroom. Fabulous south facing garden enjoying complete privacy and orientated to maximise the sunny aspect. Rear enclosed walled garden. Full size tennis court. Driveway parking for five plus cars. Large wooden outbuilding. Mains gas central heating. Freehold. Council Tax Band - G. EPC - D. Sold with no onward chain.
GENERAL COMMENTS
Lower Penair Farmhouse is a very attractive detached period house located in a very convenient position on the outskirts of Truro City centre and within a short walk of Waitrose and excellent schools. The property is larger than it looks from outside with attractive stone elevations and retains many character features throughout including a fabulous inglenook fireplace with two clome ovens in the dining room. The house and gardens are extremely private. The house has a conventional layout over two floors and all the rooms enjoy views over the gardens. There are four bedrooms and bathroom on the first floor, the master has an en suite. The ground floor includes a fitted kitchen, dining room, large sitting room, study (or fifth bedroom) and shower room. The mature gardens are enclosed within dense boundaries with lawns and many mature shrubs and plants and a brick courtyard is located at the rear which enjoys complete privacy. Two driveways provides lots of parking for at least five cars. Across the lane is a superb full size tennis court, further garden and substantial wooden outbuilding. All of the windows and doors are double glazed and there is mains gas fired central heating. A brand new slate roof was added in 2025. The house is sold with no onward chain, an internal viewing is highly recommended.
LOCATION
Lower Penair Farmhouse is perfectly located for swift access into Truro and is within walking distance of Waitrose, Great Cornish Food Hall and the Park and Ride bus stop with very regular service into the city centre and Treliske Hospital. A vets and postbox are very close by and School Lane provides walking access to Penair and Truro schools and a short cut for lovely country walks towards St Clements. The city of Truro is the main commercial and administrative centre of the county and here there is an excellent range of shopping facilities with many of the national multiples including a flagship Marks and Spencer store, historic cathedral and several outstanding private and state schools. The Hall For Cornwall offers a varied programme of entertainment and there are eighteen hole golf courses at Truro, Falmouth and St. Austell. The nearby creeks of St. Clements and Malpas offer numerous delightful walks and sailing opportunities are available at Mylor and Falmouth.
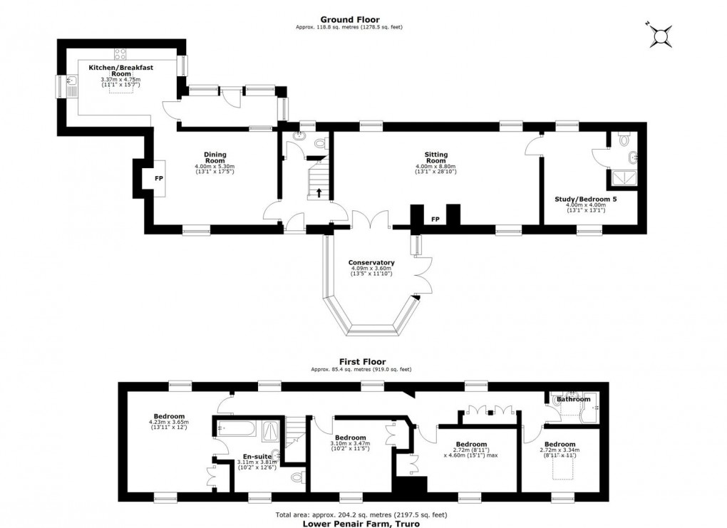
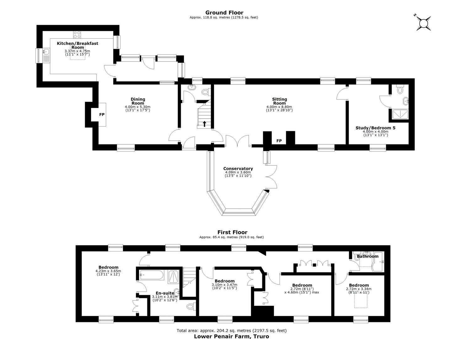
In greater detail the accommodation comprises (all measurements are approximate):
ENTRANCE HALL
Part glazed door entrance door. Stairs leading to first floor with storage below, doors to sitting room and dining room. Radiator. Door to:
CLOAKROOM
Low-level w.c, wash hand basin with tiled splashback, coat hanging space, window overlooking the rear garden.
DINING ROOM
A well proportioned, twin aspect room with windows overlooking the front and rear gardens. Fabulous inglenook fireplace with stone surround, slate hearth, two clome ovens and substantial wooden lintel. Gas woodburner effect fire. Radiator. Door to,
KITCHEN
A light twin aspect room with windows overlooking the side and rear gardens. One and a half bowl sink and single drainer, space and plumbing for washing machine and dishwasher. Base and eye level units. Kenwood Range cooker with matching extractor hood over. Worktops with tiled splashbacks. Radiator. Glazed door leading through to:
REAR PORCH
Glazed door opening into the rear walled garden. Space for additional fridge and freezers. Windows overlooking the rear garden.
From entrance hall door to:
SITTING ROOM
Another well proportioned room with two windows overlooking the rear garden and window to front. Fireplace incorporating wood burning stove on a slate hearth with wood mantle. Television and Telephone points. Two radiators. Glazed double doors opening to:
CONSERVATORY
Enjoying a sunny, south facing aspect and lovely views over the front garden. Solid glass roof with two opening windows. French doors opening into the garden and sun terrace. Tiled floor. Two electric wall mounted heaters.
BEDROOM FIVE/STUDY
Windows overlooking the front and rear gardens, radiator.
EN SUITE SHOWER ROOM
A tiled room comprising low level w.c, vanity sink unit, large shower cubicle. Heated towel rail, extractor fan.
FIRST FLOOR
LANDING
Loft access. Two windows overlooking the rear garden. Radiator.
MASTER BEDROOM
A light twin aspect room with windows overlooking the front and rear gardens. Radiator. Built-in wardrobe. Door to:
EN SUITE
White suite comprising low level w.c, vanity sink unit, panel bath, separate shower cubicle with sliding doors. Built in double wardrobe. Heated towel rail. Extractor fan.
BEDROOM TWO
Window overlooking the front garden. Exposed wooden floors, radiator, built in double wardrobe with additional storage over.
BEDROOM THREE
Window overlooking the front garden. Radiator. Built in double wardrobe with additional storage over.
INNER LANDING
Built in wardrobes/storage with shelves. Window overlooking the rear garden. Radiator.
BATHROOM
A tiled room with white suite comprising low level w.c, wash hand basin, panel bath with shower over. Window to rear. Heated towel rail.
BEDROOM FOUR
Window and Velux to front. Radiator.
OUTSIDE
Lower Penair comprises three individual detached houses each having large gardens and privacy. A private access lane leading to the three properties starts by Belvedere, the second property is Lower Penair Farmhouse. The gardens and grounds are on either side of this access lane and immediately outside the farmhouse is parking for two/three cars. The front garden is enclosed within a wooden fence and hedge boundary and therefore extremely safe for children and pets. It enjoys a very sunny, southerly aspect and comprises a large lawn interspersed with mature shrubs and plants that provide year round colour. The whole garden is extremely private and there are far reaching views to the south and west over countryside. A brick terrace provides lots of sitting out space, also accessed from the conservatory and this enjoys complete privacy and sunshine all day. A brick path leads from the gravel driveway to the entrance door and onto the driveway where an arched door opens into the rear garden.
The rear garden is a lovely enclosed courtyard style garden enclosed within a high stone boundary wall. This area also enjoys sun for the majority of the day and has been bricked for ease of maintenance. There are deep flower bed borders stocked with mature shrubs and plants including hydrangeas, bay tree and raised beds. Steps drop to a lower gravel pathway that leads to the rear entrance porch. There are outside lights and tap.
TENNIS COURT, OUTBUILDING & FURTHER GARDEN
Across the access lane is the full size tennis court which is in good condition. There is further parking for three cars and a substantial timber shed with light and power that has potential for many uses, currently a gym. The garden is mainly lawn interspersed with shrubs, plants and hedging and enjoying a sunny aspect and far reaching views.
SERVICES
Mains water, electricity and gas. Private drainage.
N.B
The electrical circuit, appliances and heating system have not been tested by the agents.
VIEWING
Strictly by Appointment through the Agents Philip Martin, 9 Cathedral Lane, Truro, TR1 2QS. Telephone: 01872 242244 or 3 Quayside Arcade, St. Mawes, Truro TR2 5DT. Telephone 01326 270008.
DIRECTIONS
From Truro leave the city in an easterly direction along Tregolls Road, which is the road to St. Austell, rising up the hill past Beechwood Park and moving into the right hand lane at the traffic lights. Turn right at the traffic lights passing the entrance to Julian Foye and left before the development (Belvedere) into a private road. Lower Penair Farmhouse is easily identified just past the tennis court on the right.
