Description
DETACHED HOUSE IN POPULAR LOCATION Beautifully presented and extended substantially in recent years. In the highly regarded Park View, just off Falmouth Road and within walking distance of the City Centre. Occupying a mature plot with enclosed gardens, the front enjoying a sunny aspect. Four bedrooms - master with en suite, sitting room, kitchen/dining room, utility, cloakroom and bathroom. Garage and driveway parking for five cars. Double glazing. Mains gas fired central heating. Freehold. Council Tax Band D. EPC - C.
GENERAL COMMENTS
22 Park View is a spacious detached dormer style bungalow that has been transformed during our clients ownership and is now a sizeable family home. The property is beautifully presented with light and spacious accommodation. Originally a modest bungalow, the vendors have converted the attic creating two double bedrooms and bathroom, the roof was replaced and two dormer windows have been added. All of the rooms are very light and spacious. The location of Park View is very convenient and whilst very peaceful, it is within walking distance of the city centre and within excellent school catchments. The accommodation includes a superb kitchen/dining room, utility, sitting room, bathroom and four double bedrooms (two on each floor). The master bedroom has an en suite shower room. Outside are front and rear gardens that enjoy a sunny aspect and privacy, driveway parking for five cars and a single garage. The house is gas centrally heated with double glazing. An internal viewing is essential.
LOCATION
Park View is approached from Falmouth Road which is a continuation of Lemon Street leading directly out of the city centre. Many of the facilities and amenities of the city are within walking distance and a fine shopping centre boasts a wide range of national multiples and smaller shops, pubs, restaurants, banks, building societies and both primary and secondary schools. There is an excellent bus service and main line railway link to London (Paddington). Truro is also renowned for its cultural facilities which include the Hall for Cornwall, Royal Cornwall Museum and the Cathedral. Truro High School For Girls is within closed proximity and The Thomas Daniel public house is a short walk.
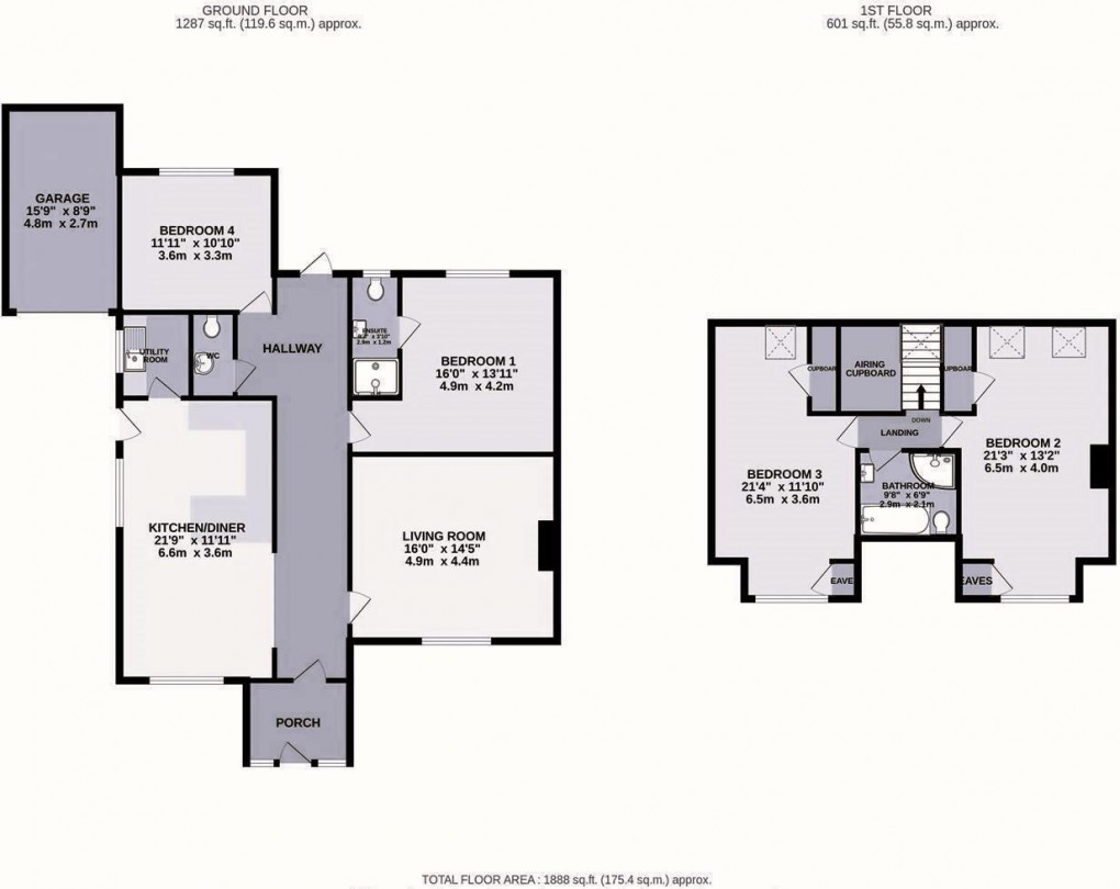
In greater detail the accommodation comprises (all measurements are approximate):
ENTRANCE PORCH
Composite door with 2 side windows. Built in storage shelves. Partly glazed door opening into entrance hall.
ENTRANCE HALL
A fine instruction to the house. Opening to kitchen/dining room, door to sitting room. Stairs to first floor. Two radiators, Part glazed door to rear garden.
CLOAKROOM
Partly tiled with white suite including low level w.c, vanity wash hand basin with cupboard below, heated towel rail, mirror fronted bathroom cabinet, spotlights, extractor fan.
LIVING ROOM (4.90m x 4.40m)
A well proportioned room with picture window overlooking the front garden. Former open fireplace with granite hearth. Two radiators, spotlights. Television point.
KITCHEN/DINING ROOM (6.60m x 3.60m)
A lovely light twin aspect room with large window to front, window to side and partly glazed door opening to side driveway. Beautifully fitted with an excellent range of base and eye level white glossy units with solid quartz work surfaces. Integral appliances including fridge/freezer, wine cooler, Neff oven, Neff microwave combination oven and Bosch induction hob with extractor over.
UTILITY ROOM
Window to side. Worktop with single sink and drainer with space and plumbing for washing machine and tumble dryer below. Mains gas central heating boiler.
BEDROOM ONE (4.90m x 4.20m)
Window overlooking the rear garden. Radiator. Space for wardrobes. Television point. Spotlights Door to:
EN SUITE
Modern white suite comprising low level w.c, vanity wash hand basin with mixer tap over and drawers below, double shower cubicle with fully tiled surround and sliding door, mirror fronted bathroom cabinet, extractor fan, frosted window to rear.
BEDROOM FOUR (3.60m x 3.30m)
Window overlooking the rear garden. Spotlights, television point.
FIRST FLOOR
LANDING. Large walk in airing cupboard with unvented hot water cylinder, slatted shelves, light.
BEDROOM TWO (6.50m x 4.00m)
A large twin aspect room with dormer window overlooking the front garden, two Velux windows to rear with views over the city including the cathedral. Storage in eaves. Television point. Built in wardrobe with light and shelves.
BEDROOM THREE (6.50m x 3.60m)
Dormer window overlooking the front driveway and garden. Storage in eaves, radiator, Velux window to rear with views over the city including the cathedral. Television point. Built in wardrobe with light.
BATHROOM (2.90m x 2.10m)
A tiled room with modern white suite comprising low level w.c, vanity sink unit with drawers and mixer tap over, mirror fronted bathroom cabinet with light. Separate corner shower cubicle, heated towel rail, extractor fan.
OUTSIDE
A brick driveway provides parking for up to five cars which is fantastic for Truro city. The front garden enjoys a sunny south facing aspect and is enclosed within a mature hedge boundary providing privacy and protection. It is completely paved and therefore ideal for entertaining and there is plenty of sitting out space. A path leads along the side to the rear.
GARAGE (4.80m x 2.70m)
Electric roller door.
REAR GARDEN
A generous garden which is primarily lawned but does have an area which has been set up for children's play equipment with bark chippings. The garden is enclosed and very safe for children and pets. A brick path leads along the rear and down the sides to the front. Steps lead upto the rear door with access into the hallway.
SERVICES
Mains water, drainage, electric and gas are connected.
N.B
The electrical circuit, appliances and heating system have not been tested by the agents.
VIEWING
Strictly by Appointment through the Agents Philip Martin, 9 Cathedral Lane, Truro, TR1 2QS. Telephone: 01872 242244 or 3 Quayside Arcade, St. Mawes, Truro TR2 5DT. Telephone 01326 270008.
DIRECTIONS
Proceeding out of the city centre via Lemon Street, continue into Falmouth Road and then opposite the Truro High School for Girls turn left into Park View. Follow the road around to the right passing the entrance into Northfield Drive and follow this road around to the right. The property is easily identified on the right where a Philip Martin sale board has been erected.
