Description
BUILDING PLOTS IN CONVENIENT LOCATION An opportunity to acquire a plot for a terrace of THREE dwellings with full planning permission and building regulations. Also available is the entire site of NINE dwellings, further details from the sole agents.
GENERAL COMMENTS
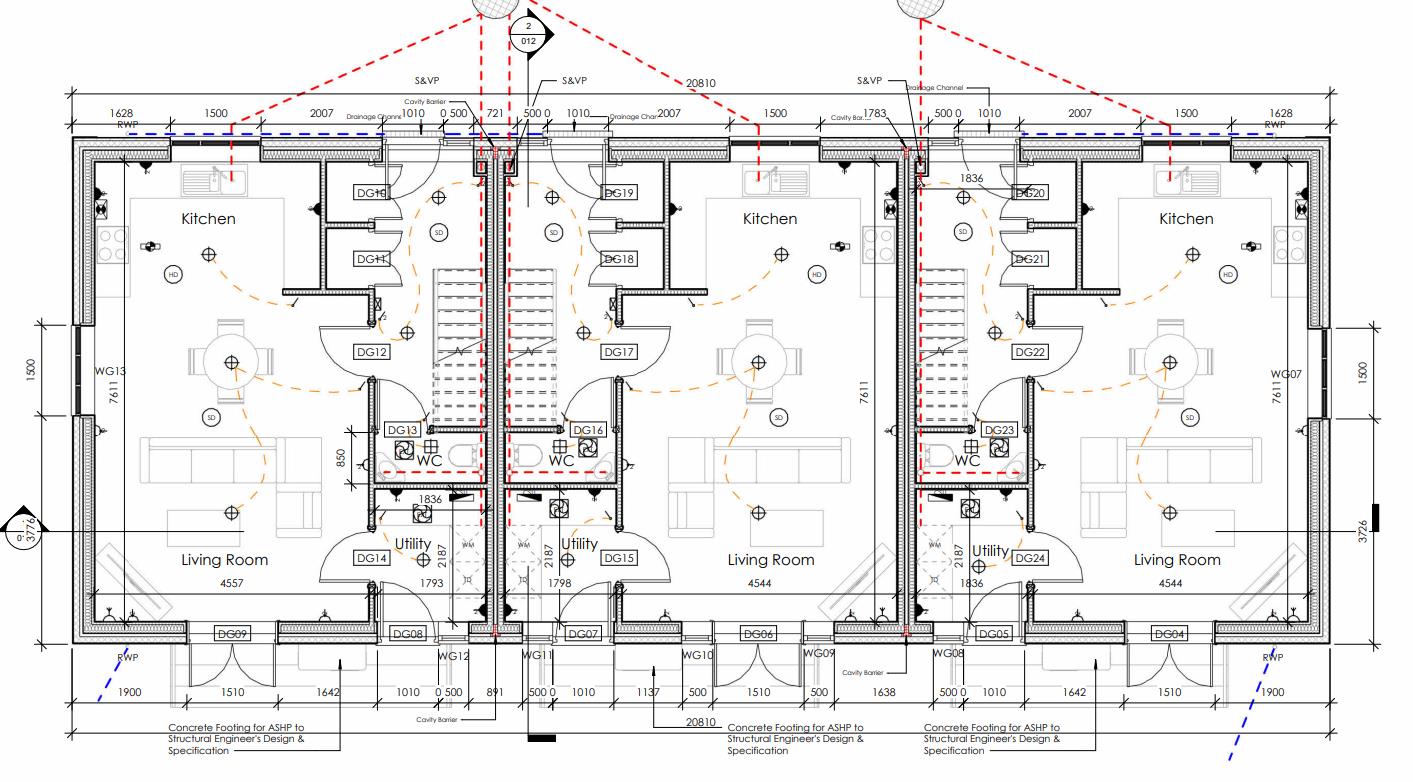
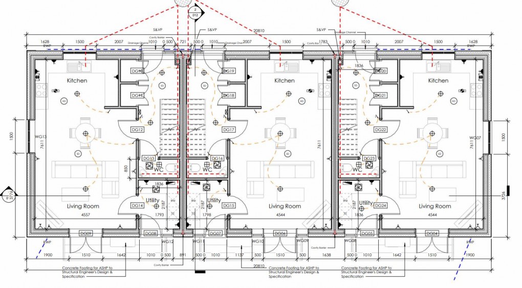
This is an opportunity to purchase a selection of three terraced plots within a convenient location within the town. The plots are available as three separate sites each comprising three, three bedroom houses although a developer may also be interested in purchasing the entire site of nine plots in total. The entire site of 9 plots is available via negotiation.
The three bedroom houses comprise of a ground floor with an entrance hall, cloakroom, open plan living room with kitchen, dining space and lounge as well as a utility room. To the first floor there are three bedrooms and a family bathroom.
PLANNING INFORMATION
The planning application number is PA17/06844 and full details can be found via the Cornwall Council Planning Portal https://planning.cornwall.gov.uk/online-applications/
VIEWING
Strictly by Appointment through the Agents Philip Martin, 9 Cathedral Lane, Truro, TR1 2QS. Telephone: 01872 242244.
DATA PROTECTION
We treat all data confidentially and with the utmost care and respect. If you do not wish your personal details to be used by us for any specific purpose, then you can unsubscribe or change your communication preferences and contact methods at any time by informing us either by email or in writing at our offices in Truro or St Mawes.
