Description
SUBSTANTIAL DETACHED GRADE II LISTED PERIOD HOUSE WITH FAR REACHING VIEWS, SUPERB STABLE YARD, SAND SCHOOL AND 5.5 ACRES Enjoying complete privacy with fabulous views over the surrounding countryside with the sea in the distance. Located in a semi rural location on the outskirts of Redruth with easy access to Truro, Falmouth and both coasts. Extending to just over 3,500 square feet with large, well proportioned rooms and very high ceilings. Retaining many fantastic period features and beautifully presented throughout. Four bedrooms - master and guest rooms with en suite, fabulous live-in kitchen, dining room, two sitting rooms, laundry room, boot room, cloakroom, spacious hallway, bathroom and shower room. Oil fired central heating. Large mature gardens surrounding the house. Superb stable yard with four stables, tack room, substantial field shelter and sand school. Detached garage/workshop, static caravan and lots of parking. Freehold. Council Tax Band - E. EPC - E.
GENERAL COMMENTS
Copper Hill House is a substantial detached period house located at the end of a long entrance drive and surrounded by its own land. It enjoys complete privacy and fabulous, far reaching views over the surrounding countryside with the sea in the distance. It is thought to have been built around 1850 and originally the offices of the Copper Hill mine, which had a short, but profitable lifespan. It is believed that at this time, the property was owned by Sir Redvers Buller who won a Victoria Cross during the Zulu War.
Copper Hill house is a very large house with well proportioned rooms, extremely high ceilings and huge Georgian style windows affording plenty of natural light, the accommodation extends to approximately 3,500 sq ft. There are many wonderful period features including herringbone small tiled floor in the entrance porch, ornate turning staircase, tall rounded sash stair window, traditional sash windows with working shutters, deep ornate moulded ceiling cornices and feature open fireplaces. Not surprisingly the house is Grade II Listed. The accommodation includes a fine entrance hall, two superb reception rooms, dining room, fabulous live-in kitchen with Aga and pantry, laundry room, boot room, shower room and cloakroom on the ground floor with four bedrooms upstairs. The master and guest bedrooms have en suite shower rooms.
Large gardens surround the house which enjoy complete privacy and far reaching views over the surrounding countryside with the sea in the distance. Large lawns are interspersed with many shrubs, plants and trees and a sunken south facing terraced garden provides plenty of sitting out space. A short distance away is the magnificent stable yard with four stables, tack room, further outbuildings and even a sand school. The land extends to approximately 5.5 acres and within the field is a substantial field shelter with two further stables. There is a detached garage/workshop and the mobile home (currently lived in by a family member) is included in the sale.
LOCATION
Redruth offers a wide range of facilities which includes shops, bars and restaurants as well as junior and secondary schooling and a mainline railway station connecting with London Paddington. More comprehensive shopping can be found in Truro which is around twelve miles away. The popular village of Portreath is only five miles away and is renowned for its beach and coastal walks.
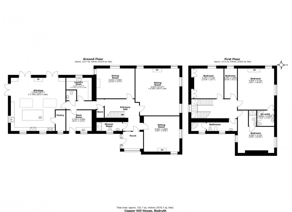
In greater detail the accommodation comprises (all measurements are approximate):
ENTRANCE PORCH
Windows overlooking the front driveway, high ceiling, terracotta tiled floor, partly glazed door leading to entrance hall.
ENTRANCE HALLWAY
An impressive hallway and a fine introduction to the house with attractive tiled floor, ornate staircase leading to first floor, two radiators.
SHOWER ROOM
Low level w.c, vanity sink unit with tiled splashback and cupboards below. Double shower cubicle with sliding doors, fully tiled surround. Sliding sash window to front. Heated towel rail, radiator. Extractor fan.
SITTING ROOM (5.00m x 4.80m)
A twin aspect room with windows overlooking the gardens and front driveway with shutters. Feature fireplace with wooden surround, slate hearth incorporating wood burning stove. Picture rail, ornate ceiling cornice, central ceiling rose, two radiators, television point. Floor hatch opening to granite steps that lead down into the cellar. Deep skirting boards.
SITTING ROOM (6.64m x 6.20m)
A fabulous, well proportioned triple aspect room with windows overlooking the gardens and grounds and fabulous countryside views beyond to the sea in the distance. All of the windows have window shutters. High skirting boards, picture rail, stunning marble fireplace with detailed wooden surround, mantel with feature carving over with integral mirror. Wood burning stove Two radiators, television point.
DINING ROOM (5.40m x 4.23m)
Two windows overlooking the garden and countryside with sea views beyond. Feature fireplace with slate hearth and open fire. Exposed wooden floors, two radiators, serving hatch into inner hallway, picture rail, dado rail.
INNER HALLWAY
Understairs cupboard housing unvented hot water cylinder with controls for the central heating system. Shelves and cupboards. Light.
LAUNDRY ROOM (3.59m x 2.72)
One and a half bowl ceramic sink with mixer tap over. Space and plumbing for washing machine, space for tumble dryer. Base level kitchen units. Window overlooking the side garden and pond, heated towel rail, tiled floor.
BOOT ROOM (3.59m x 3.54m)
Selection of wall and base units, drawers, Belfast sink, granite worktops. Double glazed window and partly glazed door leading to entrance drive, partly wood panelled walls, tiled floor, built-in bench, radiator. Cupboard housing the consumer unit and meters, the majority of the house has been rewired in recent years.
CLOAKROOM
High flush w.c. wash hand basin, tiled floor and partly tiled walls. Extractor fan.
LIVE IN KITCHEN (7.70m x 7.51m)
A fabulous and very spacious room ideal for modern day living and built in 2019. Triple aspect with windows overlooking the front garden and driveway and three sets of fully glazed French doors leading out onto a large sun terrace and enjoying a southerly aspect. Two roof lanterns with electric blinds. Excellent range of mainly base level kitchen units with granite worktops, Belfast sink with mixer tap over, additional drip sink with boiling tap over. Integral appliances including two double ovens, microwave, full length fridge and freezer, ceramic hob and further drinks fridge. Central Island unit with further stainless steel sink and mixer taps and various drawers and cupboards below including a pull out bin. Tiled floor. Walk in pantry cupboard with shelves, tiled floor, huge amounts of storage and window to front.
FIRST FLOOR
Landing. Very high ceiling with fabulous ornate ceiling cornice, central light and huge arched window to side allowing plenty of natural light. Radiator.
BEDROOM ONE (5.82m x 5.12m)
A large twin aspect room with windows overlooking the gardens and grounds, the north Cornish coast and out to sea. Deep ornate ceiling cornice, picture rail, arched recess, radiator. Feature fireplace with working gas fire (LPG), tiled surround and wooden mantle.
EN SUITE (2.40m x 2.20m)
A modern white suite including medium flush level w.c, corner shower cubicle with fully tiled surround, two sinks, mirror fronted cabinet. Two heated towel rails, tiled floor, spotlights, extractor fan. Radiator.
BEDROOM TWO (6.00m x 5.12m)
Another large twin aspect room with windows overlooking the front driveway and rear gardens and grounds with distant sea views. Two deep arched alcoves, ornate ceiling cornice. Door to
EN SUITE
White suite with low level w.c, vanity sink unit, shower cubicle with sliding doors and fully tiled surround. Spotlights, extractor fan, heated towel rail.
BATHROOM
A partly tiled room with bath, low level w.c, bidet, vanity sink with tiled splashback and mirror over. Sliding sash windows to front, radiator, two heated towel rails. Full length linen cupboard.
BEDROOM THREE (4.23m x 4.15m)
High ceiling with deep ceiling cornice, picture rail, built in cupboards in firebreast recess. Window to side with views out to Carn Brea and the sea beyond. Radiator.
BEDROOM FOUR (4.23m x 1.80m)
Window to side enjoying views.
OUTSIDE
An impressive, wide gravelled entrance drive with high stone walls leads down to the house through double wooden gates with granite pillars to a parking area for several cars. The driveway continues down to the stables. Opposite the house is a lovely enclosed walled garden which is extremely private with lots of mature shrubs and plants, wooden greenhouse, potting shed and garden pond. Beyond the walled garden is a fruit cage and small orchard with apple trees and fig. Level lawns surround the house with deep hedged boundaries and many specimen trees plants and the whole garden enjoys views over the surrounding countryside and out to sea. At the side and accessed from the kitchen is a sunken garden with a slate tiled floor and this enjoys a southerly aspect and sun all day, perfect for entertaining and barbecuing. Granite steps lead up both sides from the patio to a lawn where there are further mature shrubs and plants and a slate path continues around to the front via a secure wooden gate. Granite steps lead from the front garden to further lawn with views of the old mine. This area is less formal and has previously been grazed by horses. A mowed path leads to the sand school.
LAND, STABLES AND OUTBUILDINGS
There is a first class Stable Yard including four stables, central storage area with potential for a fifth stable and hay store. Opposite is a row of block buildings that include a secure tack room and two feed stores with light and power. Between the stables and storage rooms is an enclosed paved yard with central drainage and gated access into the paddock. The land extends to approximately three acres enclosed within natural hedge boundaries with direct gated access onto Copper Hill. Located within the field is a substantial field shelter with two stables and concrete floor. Beyond the stable yard is a sand and rubber mix sand school measuring approximately 45m x 20m. Opposite is additional gravel parking for five or six cars. The mobile home is included in the sale and has electricity, water and drainage connected.
GARAGE/WORKSHOP (8.08m x 4.88m)
Light and power is connected. Double Wooden doors. Concrete floor.
SERVICES
Mains water and electricity are connected. Private drainage. Oil central heating.
N.B
The electrical circuit, appliances and heating system have not been tested by the agents.
VIEWING
Strictly by Appointment through the Agents Philip Martin, 9 Cathedral Lane, Truro, TR1 2QS. Telephone: 01872 242244 or 3 Quayside Arcade, St. Mawes, Truro TR2 5DT. Telephone 01326 270008.
