Description
SUBSTANTIAL EXTENDED SEMI DETACHED HOUSE Located in a quiet setting within walking distance of the excellent school and village facilities. Extended substantially in 2015 to a very high standard and perfect for family living. Four bedrooms - master en suite, kitchen, dining room, sitting room, cloakroom, bathroom, entrance porch. Enclosed rear garden. Far reaching rural views. Photovoltaic and thermal panels reducing electricity costs. Income from the feed in tariff. Oil fired central heating. Double glazing. Very energy efficient and extremely low EPC Integral Garage. Car Port. Driveway parking for five cars. Freehold. EPC B. Council Tax Band C.
GENERAL COMMENTS
Copper House is a substantial semi detached house located in a quiet setting along Cuby Road and within a short walk of the excellent village facilities, primary and secondary schools. Originally the village Police Station, it was converted into a home in 2013 has been greatly improved and extended in 2015 by our clients in a very sympathetic way. Photovoltaic and thermal panels were also installed at this time and the whole house had a brand new roof. The PV panels benefit from the feed in tariff providing an income of approximately £480 per annum and the thermal panels provide free hot water in the summer months heating the thermal store 300 litre water tank located in the bathroom. A brand new oil fired boiler was installed in 2023. The accommodation includes: spacious entrance porch, kitchen/breakfast room, dining room, sitting room, conservatory, integral garage with electric roller door, rear porch, utility and cloakroom, four bedrooms and bathroom. The master bedroom has an en suite shower room. There are pleasant countryside views from the rear. Outside is a private enclosed rear garden that is ideal for children and pets. At the front is driveway parking for five cars, car port and log store.
LOCATION
Tregony is a thriving village sometimes referred to as the "Gateway to the Roseland" about seven miles from Truro and slightly further from St. Austell. Local facilities include general store and post office, public house, churches and both primary and secondary schools. Scenic attractions of the Roseland Peninsula are within easy driving distance and include the communities of Portloe, Portholland, Portscatho and Ruanlanihorne. Tregony is well placed for access to the many beaches and coastal land around the peninsula and much of this being protected by the National Trust. There is a main line railway link to London (Paddington) at Truro and St. Austell and there is also a local bus service.
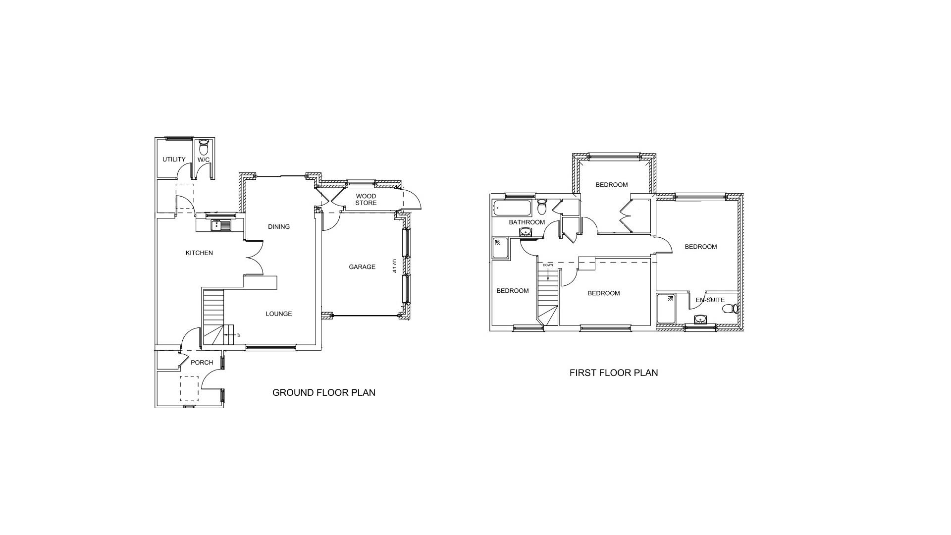
In greater detail the accommodation comprises (all measurements are approximate):
ENTRANCE PORCH (2.85m x 2.5m)
Composite entrance door, two windows and Velux. Stable door opening to:
KITCHEN/BREAKFAST ROOM (6m x 3.9m)
Excellent range of base and eye level kitchen units. Granite worktops, Belfast sink, space and plumbing for dishwasher and American style fridge/freezer, space for range cooker. Breakfast bar, slate tiled floor. Window overlooking the rear garden, glazed door opening to rear porch.
REAR PORCH (1.5m x 2.5m)
Door to rear garden. Doors to:
UTILITY AND CLOAKROOM (1.7m x 1.8m)
Space and plumbing for washing machine, space for freezer, window to rear, shelves, Separate WC.
DINING ROOM (5m x 3.2m)
Solid oak floors. Fireplace incorporating wood burning stove with granite lintel and slate hearth. Bi Fold doors opening to conservatory. television point.
CONSERVATORY (2.6m x 2.3m)
Solid glass roof, tiled floor, radiator, sliding patio doors to rear garden and windows enjoying views.
SITTING ROOM (5m x 2.6m)
Window to front, solid oak wooden floor radiator.
WOOD STORE AND BOILER ROOM (3.8m x 1.5m)
Grant oil fired central heating boiler installed in 2023.
INTEGRAL GARAGE (5.2m x 3.8m)
Electric insulated roller door, insulated cavity walls, light and power.
FIRST FLOOR
Landing, loft access, radiator.
MASTER BEDROOM (4.3m x 3.7m)
Double doors to rear enjoying views of the garden and countryside beyond. Radiator. Built in wardrobes. Loft access with ladder. Door to:
EN-SUITE (1.4m x 3.7m)
White suite with low level w.c, wash hand basin, double shower cubicle, tiled floor, extractor fan.
BEDROOM TWO (3.2m x 3.5m)
Window overlooking the rear garden and countryside beyond, built in wardrobe, television point.
BEDROOM THREE (4m x 3.1m)
Window overlooking front driveway. Radiator, television point.
BATHROOM (3m x 1.7m)
White suite comprising low level w.c, wash hand basin, panel bath, separate shower cubicle with fully tiled surround and glass door, heated towel rail, frosted window to rear. Airing cupboard housing 300 litre thermal storage water tank heated by the thermal solar and photovoltaic panels and central heating boiler.
BEDROOM FOUR (3.9m x 2m)
Window to front, radiator, television point.
OUTSIDE
At the front is a tarmac and concrete driveway providing parking for five cars and ample space for a trailer, motor home etc.
CAR PORT (5.5m x 4m)
With light and power.
REAR GARDEN
The rear garden enjoys a sunny southerly aspect and sun all day. The garden is mainly lawn and enclosed so ideal for children and pets. A patio provides plenty of sitting out space. A side pathway leads to the front.
SERVICES
Mains water, electric and drainage are connected. Oil central heating. Fibre ultra fast broadband.
N.B
The electrical circuit, appliances and heating system have not been tested by the agents.
VIEWING
Strictly by Appointment through the Agents Philip Martin, 9 Cathedral Lane, Truro, TR1 2QS. Telephone: 01872 242244 or 3 Quayside Arcade, St. Mawes, Truro TR2 5DT. Telephone 01326 270008.
DIRECTIONS
Proceeding through Tregony towards St Austell, turn right opposite the church into Cuby Road. Copper House is easily identified after a short distance on the right hand side where a Philip Martin sale board has been erected.
