Description
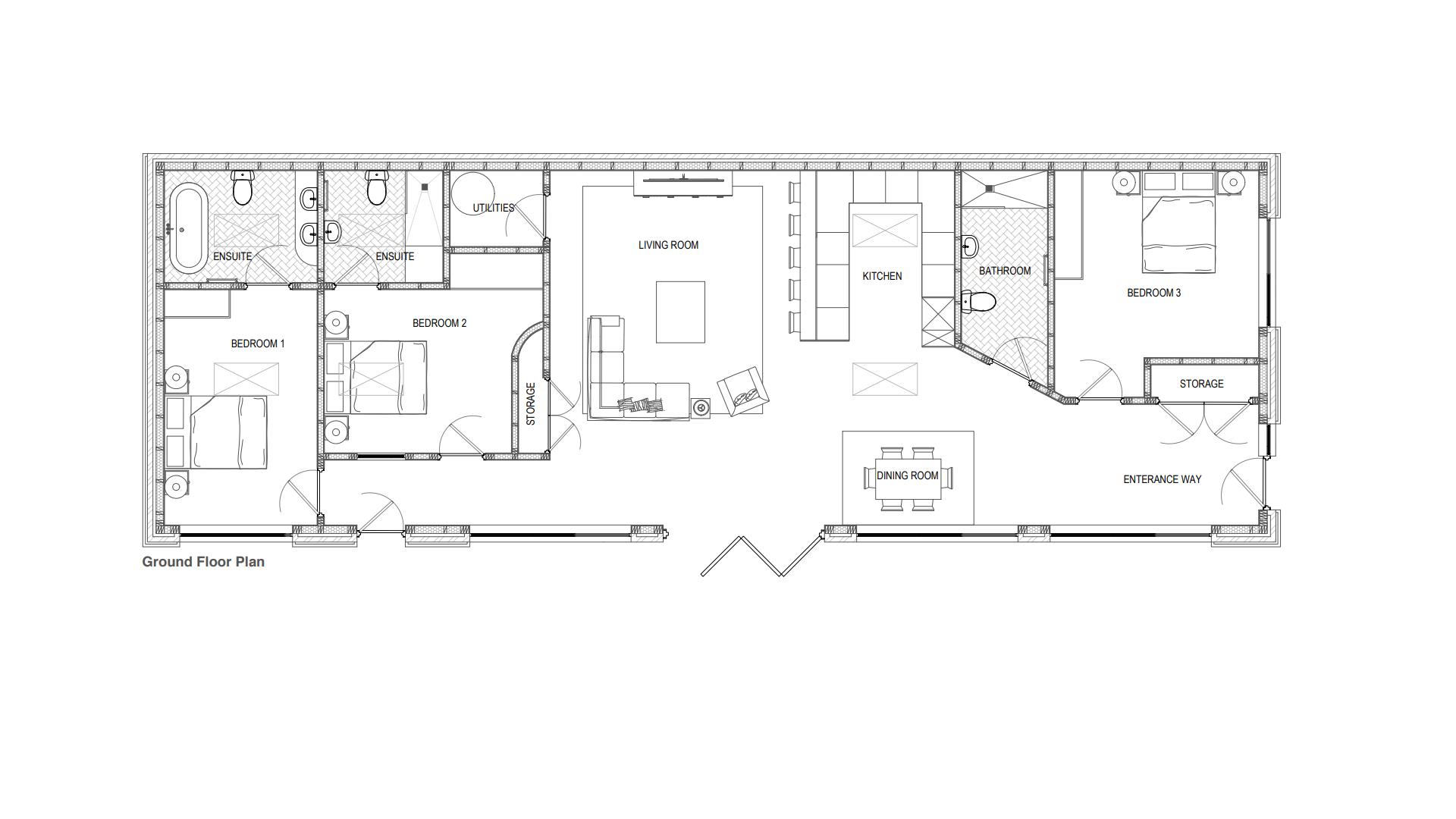
- Proposed Accommodation
- Three Double Bedrooms
- Master Ensuite Bathroom
- Huge Open Plan Living
- Plant/Utility Room
- Double Garage With Office
- Long Entrance Drive
- Fabulous Far Reaching Views
- Sunny Aspect
- Quiet Setting
THREE BUILDING PLOTS WITH FABULOUS FAR REACHING VIEWS In a very quiet location within a short walk of excellent village facilities and backing onto fields. Architect designed houses to take full advantage of the site and the magnificent views. Planning permission granted for three detached dwellings - all with views. Two four bedroom houses. One three bedroom bungalow. Enclosed gardens and lots of parking. A very rare opportunity. Further information from the sole agents.
GENERAL COMMENTS
A very rare opportunity to purchase three building plots in a very quiet semi rural position within Probus village. The location is very special indeed and accessed from Wagg Lane which is a quiet no through lane that is close to the church, village square and shops. The lower plot adjoins land owned by the Glebe and there are magnificent uninterrupted rural views at the rear from all of the properties.
Planning Permission was granted by Cornwall Council on 13th September 2023 planning application PA23/04237 for a single storey detached dwelling in the lower section of garden at the property known and Chindits which has very large grounds. The proposed accommodation will include three bedrooms, the master and guest rooms will have an en suite bathrooms, open plan living room with dining area and kitchen, utility room and bathroom. The gardens have a sunny aspect and will enjoy fabulous sunsets and the last of the days sun. There will be parking as well as the double garage.
Planning Permission has also been granted by Cornwall Council on 25th April 2023 planning application PA22/09783 for two detached dwellings. These are located further up the garden and directly below Chindits. They are very striking, two storey houses that have been purposely designed for the sloping site and provide privacy for them and also to neighbours yet make the very best of the magnificent far reaching views. The accommodation for both houses include four bedrooms, all have en suite facilities, open plan kitchen/dining and living rooms. Outside are enclosed gardens and both houses will have parking for three cars.
LOCATION
Probus is a thriving community approximately 6 miles east of Truro and a little further west of St. Austell. The village has an excellent range of everyday facilities including Parish Church, public house, primary school, farm shop, post office, village hall, restaurants and even a fish and chip shop. A very regular bus service connects to both St. Austell and Truro and here there are a wider range of facilities including banks, building societies, schools, colleges and main line railway link to London (Paddington). The village is also easily accessible to the picturesque Roseland Peninsula and many of the beaches along the south Cornish coast.
CONDITIONS
The planning conditions for the single detached dwelling (lower plot REF PA23/04237) and two detached dwellings (top two plots REF PA22/09783) are available from the sole agents. The planning permissions last for three years from 2023.
VIEWING
Strictly by Appointment through the Agents Philip Martin, 9 Cathedral Lane, Truro, TR1 2QS. Telephone: 01872 242244 or 3 Quayside Arcade, St. Mawes, Truro TR2 5DT. Telephone 01326 270008.
DIRECTIONS
From Probus village square proceed into Wagg Lane (between the Church and farm shop). Follow this road past the Church and Ridgeway and the entrance into Chindits is on the right hand side. However for viewings we recommend to park in the village square and meet the agent who will accompany and walk to the plots.
DATA PROTECTION
We treat all data confidentially and with the utmost care and respect. If you do not wish your personal details to be used by us for any specific purpose, then you can unsubscribe or change your communication preferences and contact methods at any time by informing us either by email or in writing at our offices in Truro or St Mawes.
